Book a Viewing

Grange Walk, Wroxham

Guide Price £575,000 | 4 Bedroom | Houses

Call 01263 738444 or email county@arnoldskeys.com for more details on this property
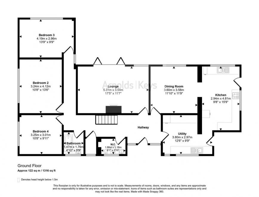
DESCRIPTION Set on an established and generous plot measuring
just over half an acre, this well presented four bedroom
detached property offers substantial and versatile
accommodation, conveniently located in the heart of
Wroxham. Having been extended over time the
property offers bright and flexible living spaces with
well proportioned bedrooms, all enjoying attractive
garden views. The home comprises a welcoming and
spacious entrance hall, leading to the living room with
bifold doors to the garden, dining room, kitchen, utility
room, cloakroom, bathroom and three bedrooms. To
the first floor in the principal bedroom with ensuite
shower room and a storage room built into the eaves.
Externally the property boasts a spacious driveway with
plenty of space for parking and access to the detached
garage, all located amongst mature and well kept
gardens. This delightful property presents the perfect
opportunity to acquire a substantial family home within
an enviable location in the Norfolk Broads.


ENTRANCE HALL Composite door to main entrance with floor to ceiling
length windows to either side, carpet flooring, stairs to
first floor.


LIVING ROOM Double glazed bifold doors to south facing rear patio
area with double glazed window to the side, oak
parquet flooring, fireplace with mantle over and
ceramic hearth, radiator.


DINING ROOM Double glazed window to south facing rear aspect, oak
parquet flooring, radiator, archway to:-

KITCHEN A dual aspect room with double glazed window to side
and rear aspect, double glazed uPVC door to side
entrance, fitted with a range of wooden fronnt wall and
base units, inset one and a half stainless steel sink
and drainer, inset electric oven, space for free
standing fridge/freezer, space and plumbing for a
washing machine, electric four ring hob with cooker
hood over, opening to utility room.

UTILITY ROOM Double glazed window to front aspect, double glazed
uPVC door to side, fitted with wooden fronted wall and
base units, inset stainless steel sink and drainer, space
and plumbing for a washing machine and tumble dryer,
tiled flooring, radiator

CLOAKROOM Double glazed window with obscured glass to front
aspect, fitted with a pedestal wash hand basin, WC,
bidet, radiator, built in storage, tiled flooring.


BEDROOM FOUR Double glazed window to rear aspect, carpet tiles,
radiator.

BEDROOM THREE Double glazed window to rear aspect, carpet tiles,
radiator.


BEDROOM TWO Double glazed window to rear aspect, carpet tiles,
radiator.

BATHROOM Double glazed window with obscured glass to front
aspect, fitted with a three piece suite comprising jacuzzi
bath with mains connected shower head over, wash
hand basin, radiator with towel rail over, extractor fan,
tiled floor and walls

FIRST FLOOR LANDING Double glazed window to front aspect, built in storage,
carpet.


EAVES STORAGE ROOM Double glazed window to side aspect. Please note
there is reduced head height in this room, please refer
to floorplan.

BEDROOM ONE Double glazed window to rear aspect, carpet flooring,
radiator, door to ensuite.

ENSUITE Double glazed window with obscured glass to rear
aspect, fitted with a three piece suite comprising
shower cubicle with mains connected shower, WC,
pedestal wash hand basin, vinyl flooring, radiator,
eaves storage cupboard.


EXTERNAL The property is approached via a timber framed gated
entrance to the shingle driveway. There is access here
to the single garage which has an up and over door,
power and lighting. The grounds measure just over
half an acre, with the majority south facing, and offer
mature lawn areas, a variety of established shrubs,
wildflowers and trees, including a fantastic
Rhododendon. There is plenty of external storge with
two sheds, alongside a spacious summer house which
is double glazed and has lighting and power - the
perfect place to enjoy views of the garden all year
round.


AGENTS NOTES This property is Freehold.
Mains drainage, electricity, water and gas connected.
Council tax band: E

< Back to Property Search

x

Cost Calculator

Based on not being a first time buyer, and a purchase price of £250,000, the stamp duty payable would be:

£2,500


Other costs to consider

  • Mortgage
  • Removals
  • Surveys
  • Solicitors Fees

This calculator works on the following assumptions: you are purchasing the freehold for the property; you are not purchasing on behalf of a company or trust; you are purchasing for your personal, residential use; you don’t already own another property. If these assumptions are incorrect, or you’d like a more detailed breakdown of stamp duty costs, please see the gov.uk stamp duty calculator.