Book a Viewing

Holt Road, Edgefield, Melton Constable

Guide Price £650,000 | 5 Bedroom | Houses

Call 01263 822373 or email coastal@arnoldskeys.com for more details on this property
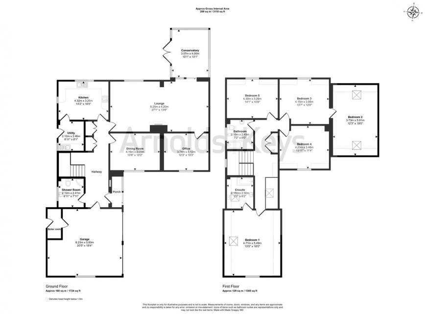
ENTRANCE PORCH With sliding glazed doors, further glass panelled door opening to:

ENTRANCE HALL With window to porch, turning staircase to first floor, fire door to garage, radiator, vaulted ceiling above landing area, two built in cloak cupboards.

SHOWER ROOM Close coupled w.c., corner shower enclosure, pedestal wash basin, radiator, window to side aspect.

DINING ROOM Window to front aspect, radiator, glass panelled door to hallway.

LOUNGE A beautifully proportioned room with central brick fireplace with tiled hearth and fitted wood burning stove. Glass panelled door to hallway, two radiators, provision for TV, window to rear, sliding patio doors to:

CONSERVATORY Of UPVC construction on brick base with double doors to rear garden.

OFFICE With glass panelled door from lounge, radiator, window to front aspect.

KITCHEN Comprehensive range of oak faced, base and wall storage cabinets with laminated work surfaces and tiled splashbacks, inset sink unit, provision for dishwasher, provision for electric cooker, windows to rear and side aspects, glass panelled door to hallway, further panelled door to:

UTILITY ROOM Further storage cupboards with laminated work surface, tiled splashbacks, provision for washing machine, part glazed door and window to side aspect.

FIRST FLOOR LANDING Part galleried overlooking hallway, built in linen cupboard, Velux roof light, radiator.

BEDROOM 1 Two aspects including window to front aspect and Velux roof light, two radiators, provision for TV, door to:

ENSUITE With panelled bath, pedestal wash basin, close coupled. w.c., fully tiled walls, Velux roof light.

BEDROOM 2 With two Velux roof lights front and rear, access to roof space, door to:

DRESSING ROOM/BEDROOM 3 Radiator, window to rear, further door to landing.

BEDROOM 4 Window to front aspect, radiator, range of fitted wardrobe cupboards.

BEDROOM 5 Window to rear, radiator.

BATHROOM Panelled bath, bidet, close coupled w.c., pedestal wash basin, radiator, fully tiled walls, window to side aspect.

OUTSIDE Integral DOUBLE GARAGE: With fire door from hallway, twin roller doors, electric light and power point. Door to: BOILER ROOM: With oil fired boiler providing central heating and domestic hot water, personal door to side aspect.

GARDENS The property is approached over a wide gravelled driveway providing ample off-road parking. There is a lawned area fronting the public footpath. A side access then leads to the enclosed rear garden which is extensively lawned and interspersed with established fruit trees and shrubs. There is a paved area immediately at the rear.

AGENTS NOTE The property is freehold and has mains electricity and water connected, drainage is to a septic tank. The property has a Council Tax Rating of Band F.

< Back to Property Search

5 Bedrooms 3 Bathrooms 3 Reception Rooms
MED 27711 64517 View EPC Graph Book a Viewing
x

Cost Calculator

Based on not being a first time buyer, and a purchase price of £250,000, the stamp duty payable would be:

£2,500


Other costs to consider

  • Mortgage
  • Removals
  • Surveys
  • Solicitors Fees

This calculator works on the following assumptions: you are purchasing the freehold for the property; you are not purchasing on behalf of a company or trust; you are purchasing for your personal, residential use; you don’t already own another property. If these assumptions are incorrect, or you’d like a more detailed breakdown of stamp duty costs, please see the gov.uk stamp duty calculator.