Book a Viewing

High Street, East Runton

Guide Price £450,000 | 4 Bedroom | Houses

Call 01263 822373 or email coastal@arnoldskeys.com for more details on this property
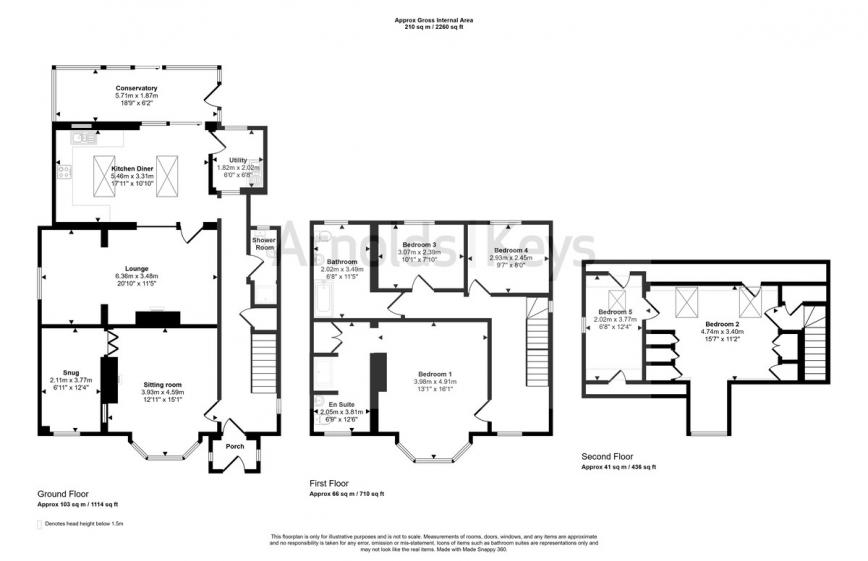
FRONT PORCH UPVC double glazed windows to the sides, door to the front, ceiling light, door to:

ENTRANCE HALLWAY Stairs leading to first floor, laminate wood flooring, ceiling light, understairs cupboard. Radiator, doors to shower room, kitchen and lounge.

SITTING ROOM UPVC double glazed bay window to the front, radiator, TV point, ceiling light, opening to:

SNUG UPVC double glazed window to front, radiator, ceiling light, laminate wood floor.

SHOWER ROOM Low level WC, wall mounted hand basin, separate shower cubicle, ceiling light. Radiator, vinyl flooring, UPVC double glazed window to rear.

KITCHEN/BREAKFAST ROOM Lovely bright room with large velux roof light. Double glazed windows to the rear with sliding patio doors to the conservatory and utility room. Range of cream base, wall and drawer units with solid wood worktops over, inset four ring gas hob with extractor hood above. Built in cooker, inset one and half bowl enamel sink with mixer tap over. Space and plumbing for dishwasher and fridge freezer. Tiled splashbacks and flooring, radiator, Opening to:

LOUNGE UPVC obscure glazed window to the side, laminate wood flooring, two radiators and TV point.

UTILITY ROOM UPVC double glazed window to the side, tiled flooring, stainless steel sink, plumbing for washing machine and tumble dryer, ceiling light.

CONSERVATORY UPVC double glazed windows to sides and rear and sliding patio doors to the garden, and door to the side. Laminate wood flooring, ceiling light.

LANDING Doors to bedrooms and bathroom, UPVC double glazed window to the front, ceiling light, stairs to second floor and carpet.

BEDROOM ONE UPVC double glazed bay window to the front, radiator, carpet, ceiling point, opening to:

ENSUITE SHOWER ROOM UPVC double glazed window to the front, low level WC, pedestal wash basin, separate shower cubicle, wall mounted gas central heating boiler and heated towel rail. Door to AIRING CUPBOARD with lagged cylinder, shelving. Vinyl flooring.

BEDROOM THREE UPVC double glazed window to the rear, carpet, radiator and ceiling light.

BEDROOM FOUR UPVC double glazed window to the rear, carpet, ceiling light, radiator.

FAMILY BATHROOM UPVC obscure double glazed window to the rear. Panelled bath with shower over, WC, pedestal wash basin, vinyl flooring, radiator and ceiling light.

SECOND FLOOR

BEDROOM TWO Large double bedroom with UPVC double glazed window to the front with sea views, carpet, three large built in wardrobes and shelved cupboard, door to under eaves storage area. Two velux roof lights, door to:

BEDROOM FIVE/DRESSING ROOM UPVC double glazed window to the side, and Velux window to the rear. Laminate wood flooring, ceiling light, door to under eaves storage cupboard.

OUTSIDE The property is located in the centre of the village with driveway parking for one car leading to the ATTACHED SINGLE GARAGE with up and over style door, power and light. Low maintenance front gravelled garden with mature shrubs to the front. The rear garden is split onto two levels, with the lower level made into a lovely seating patio area, large Koi carp fish pond, drying area, steps then lead up to the large lawn area with mature shrubs and tree and garden shed.

AGENTS NOTE This is a Freehold property, which has all mains services connected to include mains water, drainage and sewerage. The property has a council tax band D.

< Back to Property Search

4 Bedrooms 3 Bathrooms 2 Reception Rooms
Book a Viewing
x

Cost Calculator

Based on not being a first time buyer, and a purchase price of £250,000, the stamp duty payable would be:

£2,500


Other costs to consider

  • Mortgage
  • Removals
  • Surveys
  • Solicitors Fees

This calculator works on the following assumptions: you are purchasing the freehold for the property; you are not purchasing on behalf of a company or trust; you are purchasing for your personal, residential use; you don’t already own another property. If these assumptions are incorrect, or you’d like a more detailed breakdown of stamp duty costs, please see the gov.uk stamp duty calculator.