Book a Viewing

Mill Lane, Aylsham

Guide Price £170,000 | 2 Bedroom | Apartment

Call 01263 738444 or email county@arnoldskeys.com for more details on this property
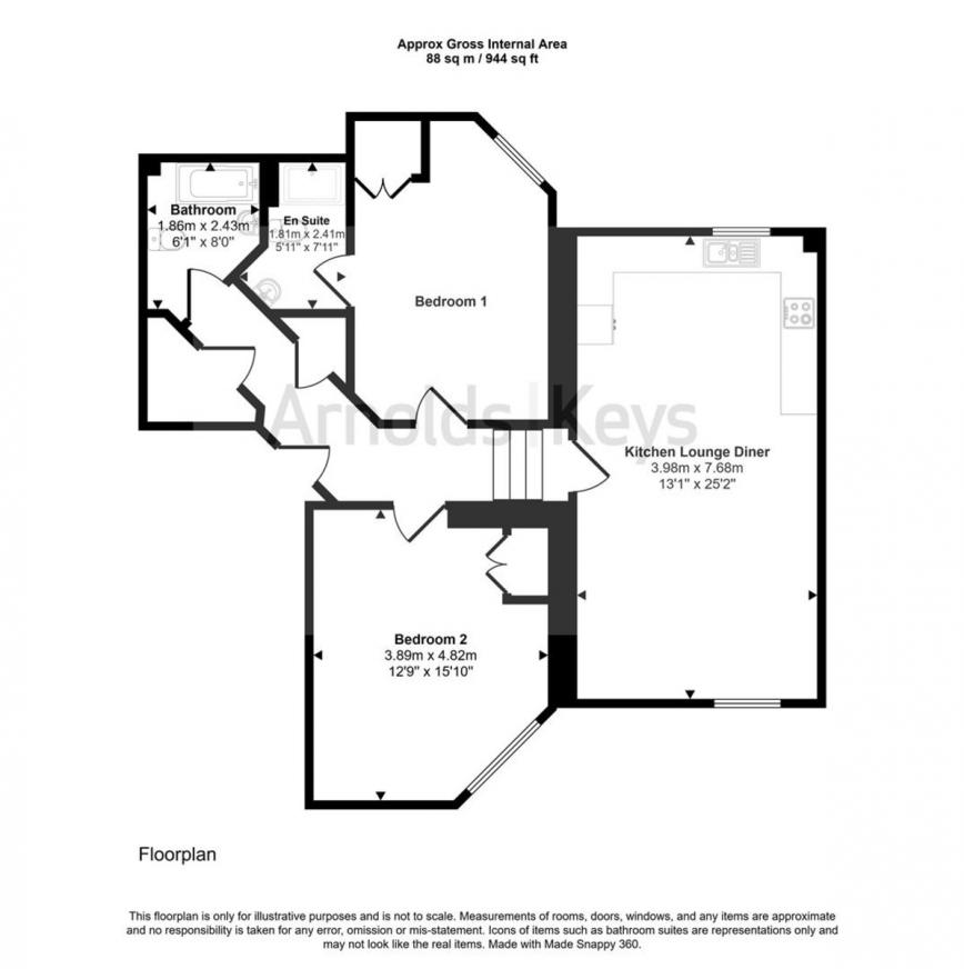
DESCRIPTION Formerly standing as the St Michaels Hospital built originally in the 1800's, this beautifully presented two bedroom apartment offers character and charm with a stylish, contemporary twist. The property comprises an entrance hall leading to the family bathroom, two double bedrooms; one with an ensuite, and the open plan kitchen/living room, with high ceilings throughout to create bright and spacious living spaces. This award winning development is conveniently located close to the market place in Aylsham and benefits from an allocated off road parking space.

ENTRANCE HALL Timber door to main entrance, built in storage cupboard and separate airing cupboard, radiator, carpet flooring, doors to:-

BATHROOM Fitted with a three piece suite comprising bath with shower head attachment, WC, pedestal wash hand basin, vinyl flooring, shaver charging point, radiator.

BEDROOM ONE Double glazed sash window to rear aspect, built in wardrobe, carpet, radiator, door to:-

ENSUITE Comprising a double shower cubicle with mains connected shower, WC, pedestal wash hand basin, vinyl flooring, shaver charging point, radiator.

BEDROO TWO Double glazed sash window to front, carpet, radiator.

KITCHEN Double glazed sash window to rear aspect, wall and base units with inset stainless steel one and a half sink and drainer, space and plumbing for washing machine, integrated dishwasher and fridge freezer, Hotpoint electric double oven with four ring gas hob and cooker hood over, radiator, tiled flooring, open to:-

LIVING ROOM Double glazed sash window to front aspect, carpet, radiator.

LOCATION Aylsham is a sought after historic market town with a range of local amenities including supermarkets, doctors and dental surgeries, an opticians, local independent shops and plenty of places to eat. The town also offers highly rated pre, first and high schools, is approximately 10 miles north of the City of Norwich and close to the stunning Norfolk Broads, with plenty of walking routes and cycle paths.

AGENTS NOTES This property is sold as Leasehold, with a share of the Freehold.
Mains drainage, electricity, gas and water connected.
Council tax band: C
Years remaining on lease: 986
Maintenance charge and ground rent charge applies.

< Back to Property Search

x

Cost Calculator

Based on not being a first time buyer, and a purchase price of £250,000, the stamp duty payable would be:

£2,500


Other costs to consider

  • Mortgage
  • Removals
  • Surveys
  • Solicitors Fees

This calculator works on the following assumptions: you are purchasing the freehold for the property; you are not purchasing on behalf of a company or trust; you are purchasing for your personal, residential use; you don’t already own another property. If these assumptions are incorrect, or you’d like a more detailed breakdown of stamp duty costs, please see the gov.uk stamp duty calculator.