Book a Viewing

Land, North Walsham

Freehold: Offers in the region of £165,000
Size: 1,406 SqFt (131 SqM)

Call Harry Downing on 01603 216806 or email harry.downing@arnoldskeys.com for more details on this property
The site extends to approximately 0.08 hectares (0.20 acres) and is positioned on the western side of North Walsham Road, within the established and attractive North Norfolk village of Trunch.

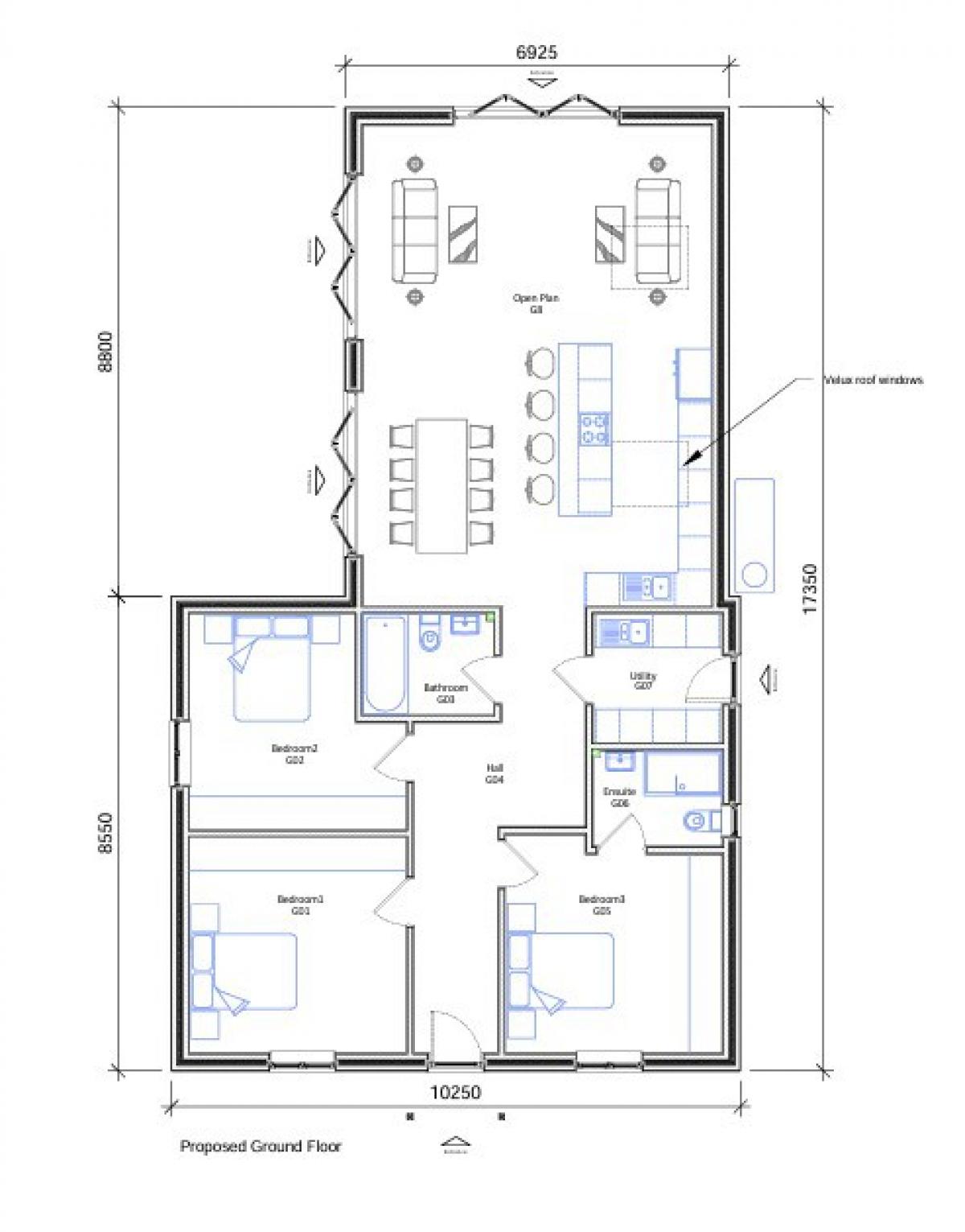
The approved scheme provides for a three-bedroom family home, offering open-plan living accommodation. Connections to mains services are available nearby, purchasers are advised to undertake their own due diligence and further investigations.

x

d17a2ac6 433a 4fa4 86a7 2567eba46269

Land On The West Side Of, North Walsham Road, Trunch, North Walsham, Norfolk, NR28 0PL

Freehold: Offers in the region of £165,000
Size: 1,406 SqFt (131 SqM)


Arnolds Keys

Harry Downing
01603 216806
harry.downing@arnoldskeys.com


Please note by submitting your details you are agreeing for Arnolds Keys to store your data in order to process your enquiry and that you have read our Privacy Policy.

< Back to Land and Property Search