Book a Viewing

Abbey Park, Beeston Regis

Guide Price £280,000 | 2 Bedroom | Bungalows

Call 01263 822373 or email coastal@arnoldskeys.com for more details on this property
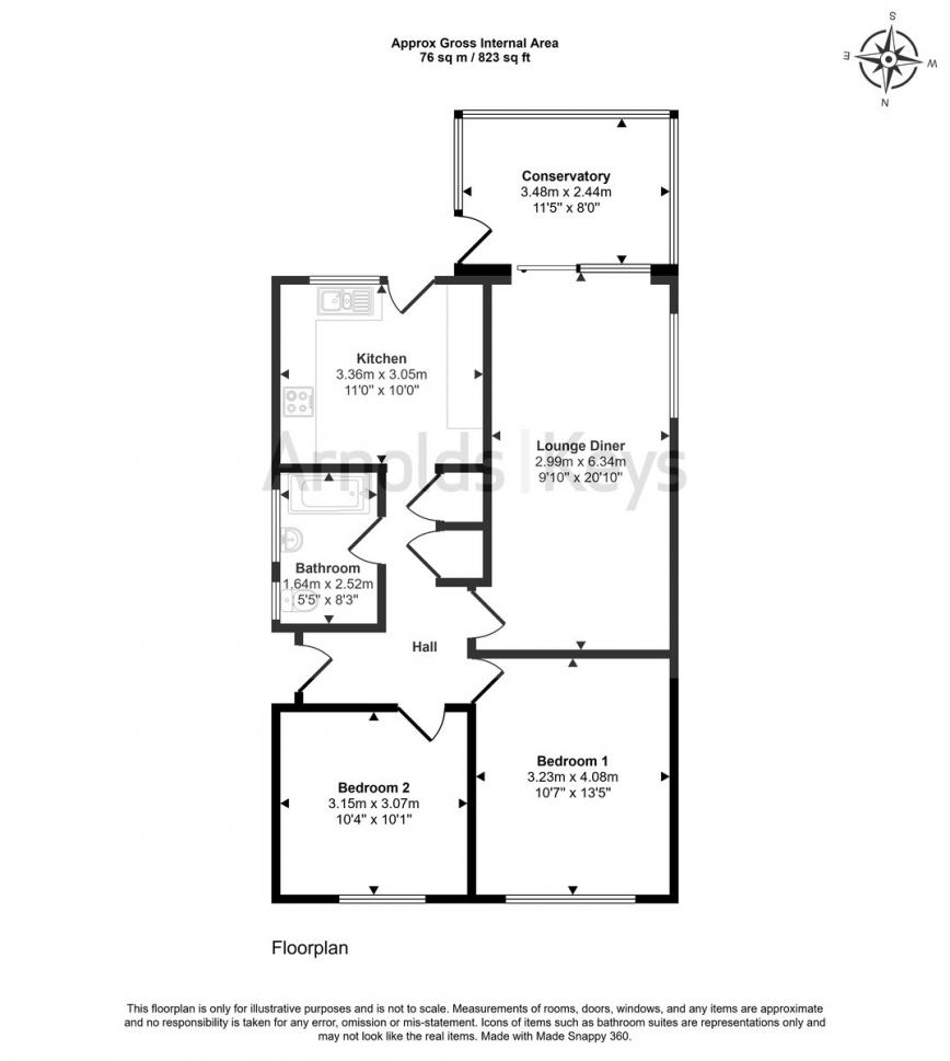
ENTRANCE HALL Part glazed UPVC entrance door, radiator, access to roof space, fitted linen cupboard and airing cupboard.

LOUNGE/DINING ROOM Two radiators, provision for TV, window to the side aspect, sliding patio doors to:

CONSERVATORY Of UPVC construction with windows and doors opening to south facing rear garden.

KITCHEN Range of white base and wall cabinets with laminated work surfaces and tiled splashbacks, inset sink unit, provision for washing machine, integrated electric hob with built in oven beneath and filter hood above, radiator, part glazed door and window to rear aspect.

BATHROOM Panelled bath, pedestal wash basin, close coupled w.c., radiator, part tiled walls, mirrored cabinet, two windows to side aspect.

BEDROOM 1 Window to front aspect, radiator, provision for TV.

BEDROOM 2 Window to front aspect, radiator.

OUTSIDE Brick built GARAGE: With roller door, electric light and power, personal side door. Timber POTTING SHED.

GARDENS To the front of the property is a concrete driveway leading to the garage and providing additional off-road parking. To the side of the driveway is a lawned garden area. The enclosed rear garden is also mostly laid to lawn with established shrub borders. There is a paved patio area immediately at the rear.

AGENTS NOTE The property is freehold, has all mains services connected and has a Council Tax Rating of Band C

< Back to Buying A Home?

2 Bedrooms 1 Bathroom 1 Reception
Book a Viewing
x

Cost Calculator

Based on not being a first time buyer, and a purchase price of £250,000, the stamp duty payable would be:

£2,500


Other costs to consider

  • Mortgage
  • Removals
  • Surveys
  • Solicitors Fees

This calculator works on the following assumptions: you are purchasing the freehold for the property; you are not purchasing on behalf of a company or trust; you are purchasing for your personal, residential use; you don’t already own another property. If these assumptions are incorrect, or you’d like a more detailed breakdown of stamp duty costs, please see the gov.uk stamp duty calculator.