Book a Viewing

The Hurn, West Runton

Guide Price £375,000 | Houses

Call 01263 822373 or email coastal@arnoldskeys.com for more details on this property
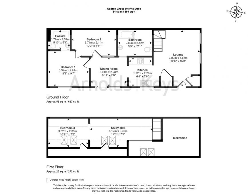
OPEN PLAN LOUNGE AREA With fully glazed entrance door, two further full height tilt and turn windows to the side aspect, wood laminate flooring, turning staircase to mezzanine floor with bespoke shelving unit beneath. Two fitted store cupboards, one housing hot water cylinder. Open to:

KITCHEN AREA Continuation of wood laminate flooring, range of high gloss base and wall cabinets with laminate work surfaces matching upstands and metro tiled splashbacks, window overlooking garden, inset sink unit, inset electric hob with built in oven beneath and filter hood above, integrated dishwasher and refrigerator. Leading to:

DINING AREA Patio doors to rear garden, continuation of wood laminate flooring, glazed panel to Bedroom 2.

BEDROOM 1 Window overlooking garden, wood laminate flooring, interconnecting door to Bedroom 2, door to:

ENSUITE Fully tiled, level entry shower area with glazed screen and mixer shower, concealed cistern w.c., wash basin, chrome heated towel rail.

BEDROOM 2 Glazed screen with blind to dining area, interconnecting door to Bedroom 1. Wood laminate flooring.

BATHROOM Panelled bath with metro tiled splashbacks, mixer shower above with spray and rainfall heads, provision for washing machine, fitted storage shelving, wall hung vanity wash basin, tiled floor, chrome heated towel rail, concealed cistern w.c..

MEZZANINE FLOOR With timber and glazed balustrade leading to play/study area with roof light and eaves storage space. This, in turn, leads to:

BEDROOM 3 With further roof lights, access to eaves storage and provision for TV.

OUTSIDE The property is approached over a vehicular access via The Hurn which leads to a gravelled parking area for at least two cars. A gated access leads to the enclosed garden which offers a patio seating area lawn and established shrub planting and fruit trees.

AGENTS NOTE The property is freehold, has mains electricity, water and drainage connected. The property is currently commercially rated.. Viewings are restricted to changeover days which are generally Mondays and Fridays.

< Back to Buying A Home?

x

Cost Calculator

Based on not being a first time buyer, and a purchase price of £250,000, the stamp duty payable would be:

£2,500


Other costs to consider

  • Mortgage
  • Removals
  • Surveys
  • Solicitors Fees

This calculator works on the following assumptions: you are purchasing the freehold for the property; you are not purchasing on behalf of a company or trust; you are purchasing for your personal, residential use; you don’t already own another property. If these assumptions are incorrect, or you’d like a more detailed breakdown of stamp duty costs, please see the gov.uk stamp duty calculator.