Book a Viewing

Retail, Wymondham

Freehold: £160,000
Size: 1,051 SqFt (98 SqM)

Email natalie.roebuck@arnoldskeys.com for more details on this property
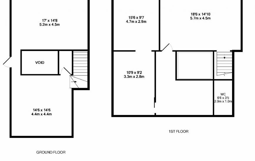
The unit comprises a traditional retail shop, with large display frontage.
The ground floor provides an open sales area, with first floor ancillary office and storage stretching over the arch.

x

17c1e882 f971 4a0a aa77 87ea6c47af01

7 Market Street, Wymondham, Norfolk, NR18 0AJ

Freehold: £160,000
Size: 1,051 SqFt (98 SqM)



Please note by submitting your details you are agreeing for Arnolds Keys to store your data in order to process your enquiry and that you have read our Privacy Policy.

< Back to Property Search