The Street

Matlaske

Guide Price

£280,000

SHARE

Share

PROPERTY TYPE

House - Semi-Detached

2

1

2

"ALL INTEREST PARTIES ARE INVITED TO SUBMIT THEIR BEST AND FINAL OFFERS IN WRITING TO ARNOLDS KEYS BY 12.00 NOON ON TUESDAY 21ST APRIL 2026"

*NO ONWARD CHAIN* A charming semi detached cottage nestled in the picturesque village of Matlaske, offering plenty of characterful features set within generous, mature South facing garden measuring just under 0.2 acres.

Key Features

  • -CHARMING TWO BEDROOM COTTAGE
  • -TWO RECEPTION ROOMS
  • -LIVING ROOM WITH WOOD BURNING STOVE
  • -SPACIOUS SOUTH FACING GARDEN
  • -PARKING FOR MULTIPLE VEHICLES
  • -IDYLLIC VILLAGE LOCATION
  • -CONSERVATION AREA
  • -ORIGINAL CHARACTERFUL FEATURES

Room Descriptions

  • DESCRIPTION

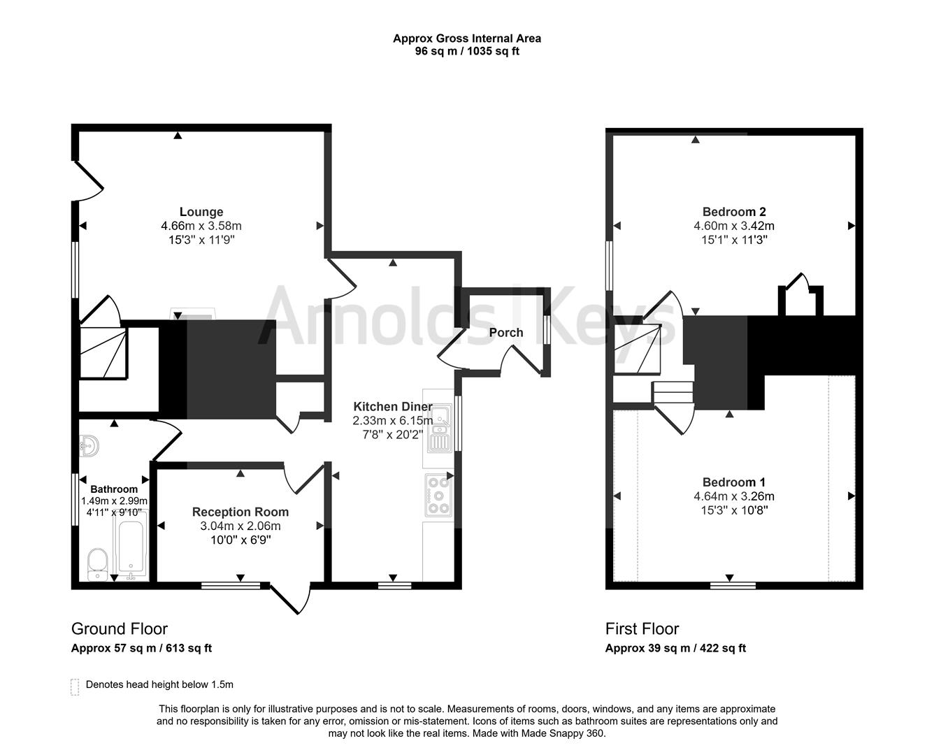
    This delightful cottage offers plenty of characterful charm amongst versatile accommodation. The property comprises an entrance porch leading to the spacious kitchen/diner, a reception room that is currently used as a home office/snug, a cosy yet bright, south facing living room with wooden beams and an inglenook fireplace housing a wood burning stove, and a bathroom completing the groundfloor accommodation. Steps from the living room take you to the first floor which offers two well proportioned double rooms, one with a large built in wardrobe. The cottage retains a traditional charm whilst offering potential to really make it your own, situated on a generous plot offering potential to extend subject to permissions. The garden extends to approximately 0.19 acres with a large lawn area, range of mature shrubs and fruit trees with a timber garage and even the original privy.

  • ENTRANCE PORCH

    Timber door with window to front aspect, fitted bench unit and concrete flooring. Timber door to-

  • KITCHEN DINER

    Double glazed window to side and front aspect, a double Belling oven with five ring gas hob, stainless steel sink with drainer either side, concrete flooring, electric storage heater.

  • LIVING ROOM

    Timber door to rear garden with window to side, inglenook fireplace with wood burning stove and timber mantle over, carpet, electric storage heater, door with stairs to first floor.

  • REAR HALLWAY

    Built in storage cupboard, carpet, doors to:-

  • RECEPTION ROOM

    Double glazed door and window to side aspect, carpet, electric storage heater.

  • BATHROOM

    Double glazed window with obscured glass to rear aspect, fitted with a three piece suite comprising bath with electric shower over, WC, pedestal wash hand basin, electric storage heater, vinyl flooring, wood pannelling.

  • BEDROOM ONE

    Double glazed window to rear aspect, built in wardrobe, wooden flooring.

  • BEDROOM TWO

    Double glazed window to side aspect, electric storage heater, wooden flooring.

  • EXTERNAL

    To the front the property is approached through a wrought iron gate, providing parking for multiple vehicles and access to the timber garage. The rear garden is South facing and comprises a mature lawn area, variety of mature shrubs and fruit trees, a greenhouse, shed and original privy.

  • AGENTS NOTES

    This property is Freehold and situated within a Conservation area.
    Mains electricity and water connected.
    Drainage via septic tank.
    Council tax band: B (North Norfolk)

  • LOCATION

    Nestled within the unspoilt countryside of North Norfolk, the village of Matlaske is a small village surrounded by open farmland and rolling rural scenery, offering an idyllic setting. Despite its tranquil feel, the village is well placed for access to nearby amenities, with the popular Georgian town of Holt just 5 miles away and Aylsham market town just over 7 miles away, both offering a range of independent shops, cafes, restaurants and schooling. The North Norfolk coastline is also within easy reach, with Sheringham approximately 5 miles to the North.
    For wider amenities, the city of Norwich lies approximately 20–22 miles to the south, offering extensive shopping, cultural attractions and mainline rail services to London. More local day-to-day amenities can be found in nearby villages such as Aldborough. The surrounding area is renowned for its natural beauty and outdoor pursuits, with nearby attractions including Blickling Estate and Felbrigg Estate, making Matlaske an appealing location.

WHAT CAN WE HELP YOU WITH?

Call us on 01263 738444 or complete the contact form below.

CONTACT US

Request a viewing on this property.








    FREE ONLINE VALUATION

    Want to know what your property is worth, in just 60 seconds?