Seacliff

Sheringham

Guide Price

£580,000

SHARE

Share

PROPERTY TYPE

House - Mid Terrace

5

2

3

Forming part of a chic terrace of seafront dwellings is this superb property offering the most stunning sea views from the principal accommodation and terrace. The property offers five bedrooms, two bathrooms and an extended living area with bi-fold doors opening to the terrace. Gas central heating is installed throughout and the windows are all UPVC sealed units. A number of art deco features will be found within the accommodation, providing a hint to its history.

The property is currently a successful holiday let but would be equally suitable for permanent use being just a short walk to the Town Centre.

Key Features

  • -No onward chain
  • -Stunning seaviews
  • -Extended living accommodation
  • -Bi-fold doors to cliff terrace
  • -Rooftop terrace with panoramic views
  • -Five bedrooms
  • -Two bathrooms
  • -Garage

Room Descriptions

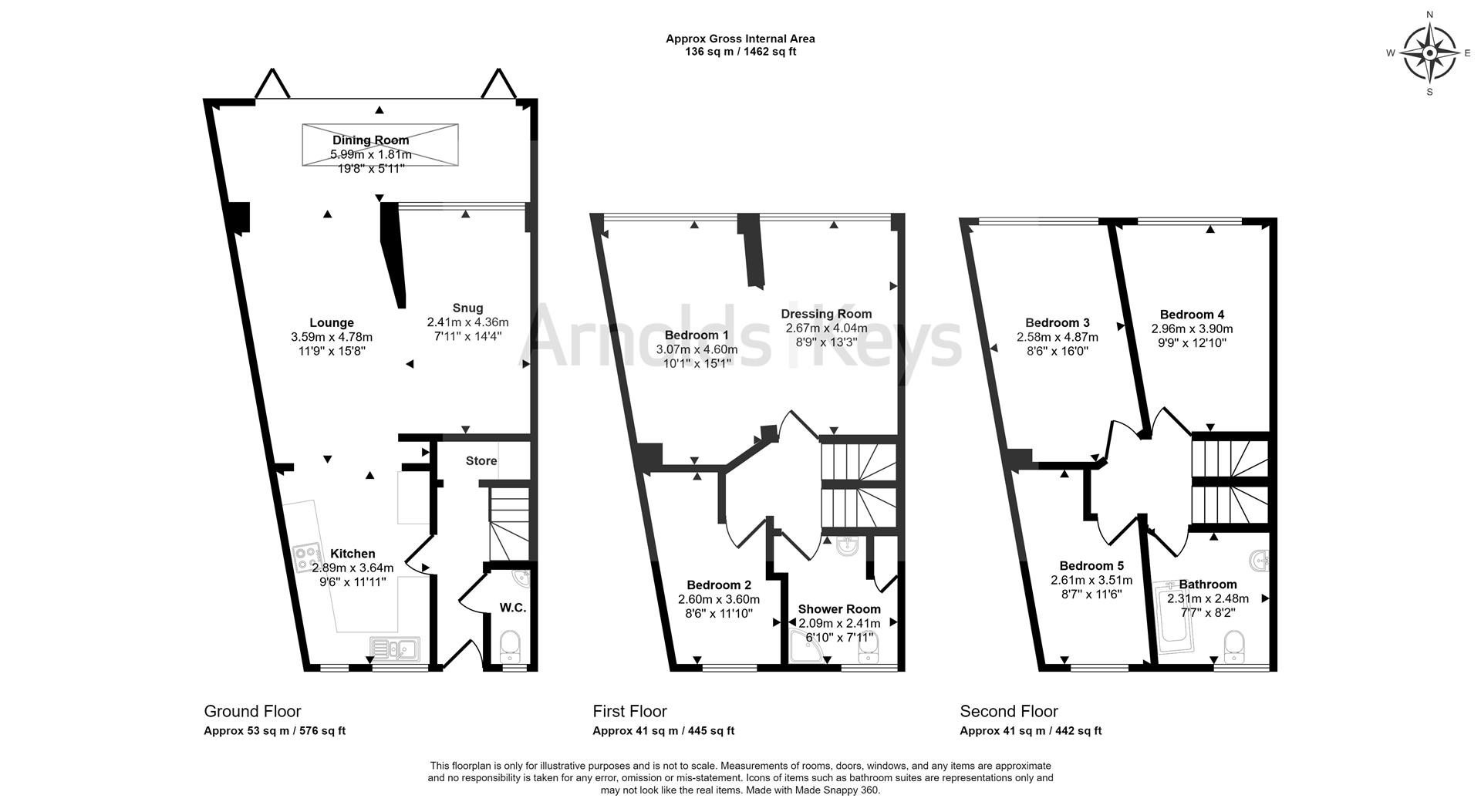
  • ENTRANCE HALL

    Part glazed entrance door, radiator, built in store cupboard, turning staircase to first floor.

  • CLOAKROOM

    Close coupled w.c., radiator, corner wash basin with tiled splashbacks, window to rear.

  • KITCHEN

    Range of white Shaker style units with wood work surfaces and tiled splashbacks. Inset sink unit, inset electric hob with oven beneath and stainless steel hood above. Provision for washing machine. Open plan design leading to:

  • LOUNGE AND SNUG AREA

    With polished wood floor, wood burning stove on tiled plinth, leading to:

  • DINING ROOM

    This has been formed from the ground floor extension and has full-width bi-fold doors to the terrace with stunning coastal views. The light floods through the lantern roof too, making this a lovely light area to dine. There are two radiators and the polished wood floor continues through this room. Provision for wall mounted TV.

  • FIRST FLOOR
  • LANDING

    Stairs to second floor. Polished wood floor.

  • SHOWER ROOM

    Corner shower enclosure with mixer shower and mosaic tiled splashbacks, close coupled w.c., pedestal wash basin, wall mirror with light above, fitted airing cupboard, chrome heated towel rail.

  • DRESSING ROOM

    Polished wood floor, fitted window seat, radiator, window to front aspect with stunning views. This room is open plan to:

  • BEDROOOM 1

    Polished wood floor, fitted window seat, radiator, window to front aspect with stunning views.

  • BEDROOM 2

    Radiator, window to rear, polished wood floor.

  • SECOND FLOOR

    Stairs to roof top terrace.

  • BATHROOM

    Panelled bath with mixer tap and shower attachment, close coupled w.c., window to rear, pedestal washbasin with light over, chrome heated towel rail.

  • BEDROOM 3

    Polished wood floor, window to front aspect with stunning views, radiator.

  • BEDROOM 4

    Polished wood floor, window to front aspect with stunning views, radiator.

  • BEDROOM 5

    Polished wood floor, radiator, views over the Town to the rear.

  • ROOFTOP TERRACE

    With stunning panoramic views over the surrounding area.

  • OUTSIDE

    GARAGE in separate block at the rear. Communal rear courtyard with additional off-road parking. Cliff top terrace at the front.

  • AGENTS NOTE

    The property is freehold, has all mains services connected. The property is currently commercially rated but its previous Council Tax rating was band B. Please note: The property is currently let for holidays and viewings will be restricted to change over days. Please telephone the office to check viewing availability.

WHAT CAN WE HELP YOU WITH?

Call us on 01263 822373 or complete the contact form below.

CONTACT US

Request a viewing on this property.








    FREE ONLINE VALUATION

    Want to know what your property is worth, in just 60 seconds?