John William Way

Bodham

Guide Price

£525,000

SHARE

Share

PROPERTY TYPE

House - Detached

3

3

2

Springfield is an exceptional detached chalet offering generously proportioned accommodation and forming part of a small development of just five dwellings in this popular North Norfolk village. The Georgian market town of Holt is just three miles distant and the coast at Sheringham is a short drive away too.

This superb property is offered with no onward chain and is available for immediate occupation. The beautifully presented accommodation has the benefit of gas fired central heating and sealed unit glazing throughout. A private viewing of this property is highly recommended to those seeking a low maintenance, modern home.

Key Features

  • -No onward chain
  • -Village setting
  • -Beautifully presented
  • -Three bedrooms
  • -Three bathrooms including one ensuite
  • -Two reception rooms
  • -Gas central heating
  • -Double garage and off-road parking

Room Descriptions

  • COVERED PORCH

    With part glazed composite door and side panel opening to:

  • RECEPTION HALL

    Engineered oak flooring, radiator, stairs to first floor, twin fully glazed doors opening to:

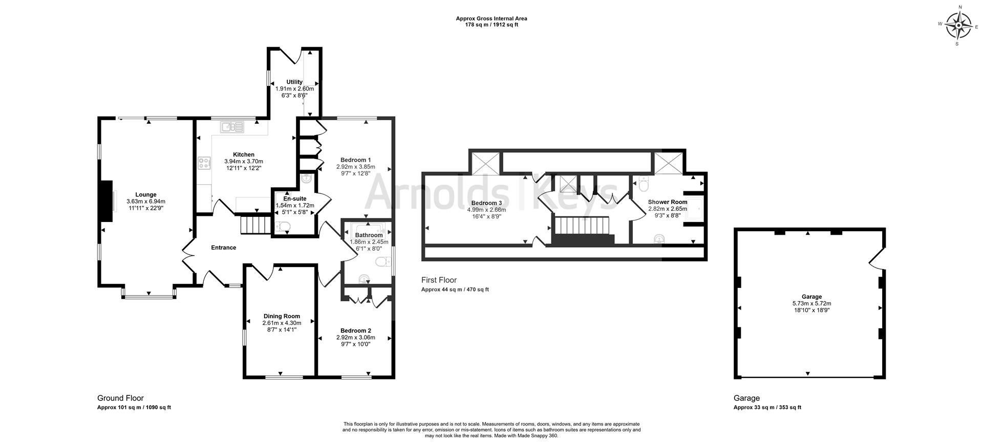
  • LOUNGE

    A beautifully light room with windows to three aspects including full height patio doors to the rear. Central feature fire place with oak mantel and brick recess housing wood burning stove on slate hearth. Provision for TV, two radiators.

  • KITCHEN/BREAKFAST ROOM

    Fitted with a comprehensive range of shaker-style base and wall cabinets with extensive work surfaces and tiled splashbacks. Inset double electric oven, inset electric hob with stainless steel extractor above, inset sink unit with mixer tap, window to rear aspect, integrated dishwasher, tiled floor, radiator. Archway leading to:

  • UTILITY ROOM

    Part glazed door and window to rear, further base and wall cabinets with work surface and tiled splashbacks, wall mounted Worcester gas boiler providing central heating and domestic hot water, integrated fridge/freezer, radiator, continuation of tiled floor.

  • DINING ROOM

    Another light room with two aspects to the front and side, engineered oak floor, radiator.

  • BEDROOM 1

    Engineered oak floor, window to rear aspect, radiator, range of full height built in wardrobe cupboards, provision for wall mounted TV, door to:

  • ENSUITE

    Fully tiled shower enclosure with mixer shower, vanity wash basin with cupboard beneath, close coupled w.c., wall mounted cabinet, electric shaver point, fully tiled walls and floor.

  • BATHROOM

    Beautifully fitted with a modern suite of panelled bath with mixer tap, shower and screen, close coupled w.c., vanity wash basin with drawers beneath, chrome heated towel rail, wall mounted cabinet, electric shaver point. Gully tiled walls and floor, window to side aspect.

  • BEDROOM 2

    Engineered oak floor, radiator, window to front aspect, large full-height wardrobe cupboard.

  • FIRST FLOOR LANDING

    Built in airing cupboard, further built in wardrobe/store cupboard. Velux roof light to rear with extensive views over the surrounding countryside.

  • BEDROOM 3

    Radiator, eaves storage cupboards, provision for TV. Velux roof light to rear with extensive views over the surrounding countryside.

  • SHOWER ROOM

    Enclosed, tiled shower cubicle with mixer shower, vanity wash basin with drawers beneath, chrome heated towel rail, close coupled w.c. Velux roof light to rear with extensive views over the surrounding countryside, tiled floor.

  • OUTSIDE

    Brick built DOUBLE GARAGE: With roller door and personal side door. Electric light and power.

  • GARDENS

    The property occupies a generous corner plot and a wide driveway leads to the garage and provides additional off road parking. The plot is level and is extensively lawed with established planting to the borders. The gardens are enclosed at the front with close boarded fencing and walled at the rear. There is a paved patio area at the rear too.

  • AGENTS NOTE

    The property is freehold, has all mains services connected and has a Council Tax rating of Band D. There are two solar panels assisting the water heating.

WHAT CAN WE HELP YOU WITH?

Call us on 01263 822373 or complete the contact form below.

CONTACT US

Request a viewing on this property.








    FREE ONLINE VALUATION

    Want to know what your property is worth, in just 60 seconds?