Norwich Common

Wymondham

Price on Application

£0

SHARE

Share

PROPERTY TYPE

Leisure / Healthcare / Nursery

Office

Size

5,490 sqft

Elm Farm Business Park is an attractive, mixed-use business park with existing offices, 2 new terraces of small light industrial units (currently under construction) and a new doctors' surgery/medical centre/health services building.

The new Medical Centre/Health Services building is available to pre-let.

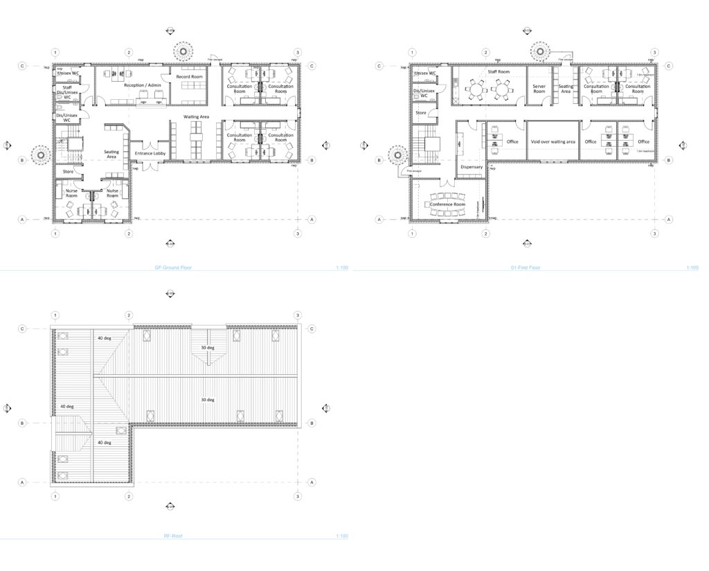
The ground floor will comprise a reception/admin area, medical records room, seating and waiting areas, 4 consultation rooms, and 2 nurses rooms. On the first floor are further consultation rooms, staff admin and amenity facilities.

Externally, the property is served by 25 car parking spaces, 3 disabled spaces and 10 cycle spaces.

The building has been designed to reflect the traditional appearance of the existing farm buildings which have been converted to offices.

Units 1-11 are new light industrial/warehouse units ranging in size from 1,500 to 2,282 sq ft available from Q2 2024.

Key Features

  • -Medical Centre/Health Services Use
  • -2-storey purpose built surgery
  • -Parking for 25 cars
  • -Conveniently located on the old A11 between Norwich and Wymondham
  • -Fast expanding market town with population of 17,000
  • -Additional 1,800 homes planned by 2038
  • -Available from Q2 2024
WHAT CAN WE HELP YOU WITH?

Call us on 01603 620551 or complete the contact form below.

CONTACT US

Request a viewing on this property.








    FREE ONLINE VALUATION

    Want to know what your property is worth, in just 60 seconds?